Правителството одобри списъка на проектите, които ще бъдат изпълнявани по първата публична инвестиционна програма „Растеж и устойчиво развитие на регионите”.

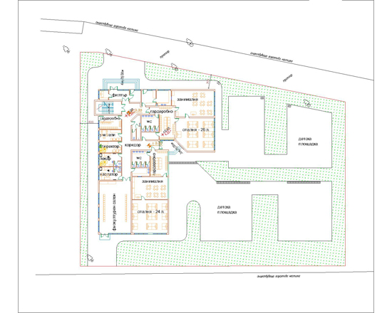
Община Поморие предложи три проекта за финансиране с помощта на програмата. От тях бе одобрен този, за изграждане на детска градина с две групи в кв. Север, гр. Поморие на стойност 998 500 лв. Междуведомственият съвет разгледа над 1100 проектни предложения на общините, от които са удовлетворени 392.

Сред проектите, които не бяха одобрени за финансиране са за  изграждане на детска градина с четири групи в село Гълъбец, на стойност 1 997 900 лв. и за ремонтиране на пътната отсечка

Поморие – Каменар, на стойност 1 902 907, 94 лв.

С постановлението си правителството гарантира прозрачното разходване на средствата по инвестиционната програма. Одобрените проекти ще  получат авансово 30% от сумата на проекта, а последващите плащания да се извършат на база на представени разходооправдателни документи от бенефициентите.

„Община Поморие е в пълна готовност за възможно най-бързо реализиране на проекта, защото разполагаме с одобрени технически проекти, влезли в сила разрешения за строеж и необходимата документация за процедурите по ЗОП. Изграждането на детската градина е крайно належащо, заради затрудненията които изпитват живеещите там от липсата на достатъчно места за децата”, каза кметът Алексиев.